DORMAKABA Gleitschiene G 96 GSR-EMF K8/K12 kurz

Dieser Schließfolgeregler sorgt nicht nur für die richtige Reihenfolge beim
Schließen 2-flügeliger Türen, er ermöglicht außerdem über eine elektromechanische
Feststellung ein individuelles Feststellen der Türflügel.
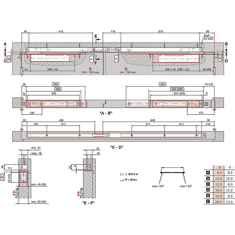
Die Feststellpunkte für beide Türflügel liegen zwischen ca. 80° und 120°.
Hinweis:
Feststellpunkt ist gleichzeitig max. Türöffnungswinkel, Türstopper setzen.
Im Alarmfall oder bei Stromausfall wird die Feststellung aufgehoben und die Tür vom
Türschließer geschlossen.
Die Ansteuerung erfolgt über externe Rauchmeldezentralen.
Durch die einstellbare Ausrückkraft (werkzeuglos) kann die Feststellung auch von Hand problemlos ausgelöst
werden.
Der Gleitschienen-Schließfolgeregler G 96 GSR-EMF kann mit beiden Türschließergrößen des
ITS 96 kombiniert werden.
mit Schließer EN 2-4 = FB 1290 - 2200 mm
mit Schließer EN 3-6 = FB 1290 - 2680 mm
Hinweis:
Breite des Standflügels 540 - 700 mm
- Artikelnr.
- PL-1022830279
- Basiseinheit
- ST (C62)
- Preis pro
- 1 ST
